In Stock
SREXR-KOM159 High Quality Auto HM300 KOMATSU Radiator
KOMATSU
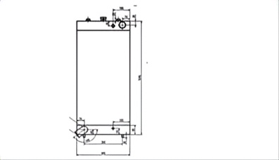
Core Dimensions
L:
930mm
W:
418mm
T:
100mm